Обмен веществ
ОБМЕН ВЕЩЕСТВ (метаболизм), совокупность хим. процессов, обеспечивающих жизнедеятельность организма. Хим. превращ. в организме осуществляются в двух противоположных направлениях-синтез сложных соед. из более простых (а н а б о л и з м, или а с с и м и л я ц и я) и расщепление сложных соед. до более простых (к а т а б о л и з м, или д и с с и м и л я ц и я).
Первонач. представления об обмене веществ возникли в связи с изучением процессов обмена между организмами и внеш. средой (т. наз. внешний, или общий, обмен веществ). Послед. исследования превращений в-в внутри организма привели к представлениям о в н у т р е н н е м, или п р о м е ж у т о ч н о м, обмене веществ.
Во внутреннем и внешнем обмене веществ принято различать структурный (пластический) и энергетический обмены. В структурном обмене рассматривают превращения разл. соед. в организме, их перенос (транспорт) внутри организма и между организмом и средой. В энергетич. обмене рассматривают превращения хим. энергии, образующейся в обмене веществ, в тепло, мышечную работу, а также механизмы ее использования в активном транспорте, биосинтезе и др.
В соответствии с природой участвующих в обмене веществ соед. различают орг. обмен (обмен углеводов, липидов, азотсодержащих соед. и др.) и минер. обмен (водно-солевой обмен и обмен микроэлементов); в физиологии выделяют также газовый обмен. Обмен веществ с участием свободного О2 наз. а э р о б н ы м, без участия О2-а н а э р о б н ы м. Ввиду различий обмена веществ у организмов, принадлежащих к разл. таксономич. группам, выделяют обмен веществ растений, животных, микроорганизмов, а также более мелких таксономич. единиц, напр. обмен веществ млекопитающих, злаковых, дрожжей, человека, бактерии Escherichia coli. При изучении обмена веществ учитывают половые и возрастные различия, а также отклонения в обмене веществ, вызванные влиянием внеш. среды и питания. Раздельно рассматривают обмен веществ в разл. тканях и органах. Устойчивые отклонения обмена веществ от нормы квалифицируют как болезни обмена веществ.
Структурный обмен
В зависимости от того, в какой хим. форме живые организмы способны усваивать из внеш. среды углерод, они делятся на две большие группы-а в т о т р о ф ы и г е т е р о-т р о ф ы. Для первых осн. источником углерода служит СО2, для вторых-разл. орг. соединения. Автотрофное питание осуществляют зеленые растения и фотосинтезирующие бактерии, гетеротрофное - животные и грибы. У микроорганизмов встречаются тот и др. типы питания. Обмен веществ автотрофных организмов является по преимуществу анаболическим, гетеротрофных - катаболическим. Основу пластического обмена составляет органический обмен. Традиционное разделение его на углеводный обмен, липидный обмен и обмен азотсодержащих соединений обусловлено большой распространенностью в живой природе соед. этих классов и различием их свойств.
Субстратами орг. обмена являются в-ва, поступающие из внеш. среды, и в-ва внутр. происхождения. В процессе обмена веществ часть конечных продуктов выводится во внеш. среду, др. часть используется организмом. Конечные продукты орг. обмена в тканях, способные накапливаться или расходоваться в зависимости от условий существования организма (напр., триацилглицерины, гликоген, крахмал, проламины), наз. запасными, или резервными, в-вами. Если скорость поглощения субстратов превосходит скорость выведения конечных продуктов, то анаболизм преобладает над катаболизмом и организм развивается или накапливает резервные в-ва. При равенстве этих скоростей рост организма прекращается и обмен веществ переходит в состояние, близкое к стационарному. В случае превышения скорости выведения конечных продуктов над скоростью потребления после истощения запаса резервных в-в организм обычно погибает. Последнее наблюдается при искусств. ограничении потребления внеш. субстратов (напр., алиментарная дистрофия при голодании животных, самосбраживание дрожжей в условиях дефицита углеводов) или в естеств. условиях (напр., при интенсивном дыхании плодов и семян растений).
Гл. катаболич. процесс в обмене веществ-биол. окисление (совокупность р-ций окисления, протекающих во всех живых клетках, -дыхание и окислительное фосфорилированиё). Интегральной характеристикой биол. окисления служит дыхат. коэф., к-рый представляет собой отношение объема выделенного организмом СО2 к объему поглощенного О2. При окислении углеводов объем расходуемого О2 соответствует объему образующегося СО2 и поэтому дыхат. коэф. в этих случаях равен единице. При окислении жиров и белков такое соответствие отсутствует, т. к. кроме окисления углерода до СО2 часть О2 расходуется на окисление водорода с образованием воды. Вследствие этого величины дыхат. коэф. в случае окисления жиров и белков составляют соотв. ок. 0,7 и 0,8. Подавляющая часть белкового азота при окислении белка в организме млекопитающих переходит в мочевину. Поэтому по дыхат. коэф. и данным о кол-ве выделяемой мочевины у млекопитающих можно определять соотношение участвующих в биол. окислении углеводов, жиров и белков.
Осн. анаболич. процессом, противоположным биол. окислению, является осуществляемый автотрофами фотосинтез орг. соед. из СО2 и воды. Вместе с тем автотрофы осуществляют частичное окисление продуктов фотосинтеза. Для характеристики их общего обмена веществ также используют дыхат. коэффициент.
Последовательности р-ций в организме, в к-рых осуществляется превращ. субстратов в конечные продукты обмена веществ, наз. п у т я м и обмена веществ, или м е т а б о л и ч. п у т я м и, а в-ва, участвующие в этих р-циях,-м е т а б о л и т а м и. В зависимости от характера превращ. субстратов метаболич. пути подразделяют на анаболические и катаболические. Обратимые участки метаболич. путей, состоящие из равновесных р-ций и используемые организмами как для синтеза, так и для расщепления сложных соед., наз. а м ф и б о л и ч е с к и м и. Подавляющую часть р-ций, составляющих метаболич. пути, катализируют ферменты. Для своего функционирования мн. ферменты нуждаются в низкомол. соед., наз. коферментами. У высших животных большая часть коферментов (или их непосредственных предшественников) поступает в организм с пищей в виде незаменимых факторов питания-витаминов.
В простых случаях стационарность обмена веществ обеспечивают метаболич. пути, образованные линейными последовательностями р-ций (напр., гликолиз, синтез и расщепление жирных к-т). Если метаболич. пути включают р-ции, в к-рых образуются в-ва, не выводимые во внеш. среду, то стационарность обмена веществ поддерживается дополнит. р-циями, обеспечивающими регенерирование этих в-в в предшествующие метаболиты. В результате метаболич. пути принимают вид циклич. последовательностей р-ций (см., напр., Трикарбо-новых кислот цикл, Глиоксилатный цикл).
Разл. метаболич. пути включают много общих промежут. соед. и поэтому образуют единую сеть р-ций, к-рая обнаруживает структурную регулярность. Эта регулярность, обусловленная наличием большого кол-ва сходных р-ций у метаболитов с одинаковыми функц. группами, отражена в схемах 1-3. Эти схемы объединяют данные по обмену веществ у животных, растений и микроорганизмов. Р-ции обмена веществ человека и близких по обмену веществ млекопитающих выделены жирными стрелками. Соед. с одинаковыми функц. группами размещены на схемах на одной горизонтали в порядке увеличения числа атомов С в скелете их молекул. По вертикали схемы разделены на участки, связанные сходными р-циями и включающие соед. с одинаковым числом атомов С в скелете. Эти участки, соответствующим образом пронумерованные, названы периодами (номер периода соответствует числу атомов С в скелете молекулы). Смежные периоды имеют сходную структуру; соед., занимающие в них соответствующее положение, являются гомологами. Назв. и формулы нек-рых к-т, встречающихся в тексте и на схемах 1-3, приведены в таблице.
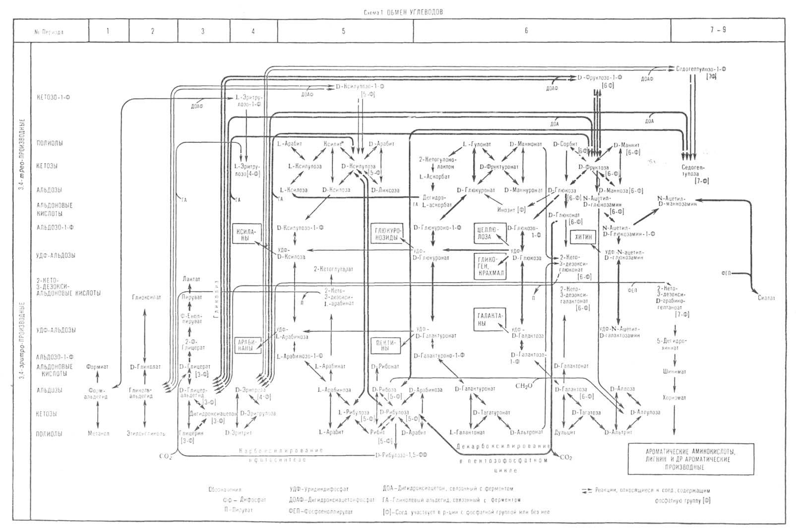
О б м е н у г л е в о д о в. Важнейший метаболич. путь в обмене углеводов - гликолиз, в к-ром осуществляется превращение гексоз в две молекулы лактата. Этот путь широко представлен в тканях животных и обеспечивает двигат. ф-цию скелетных мышц. В печени амфиболич. р-ции этого пути участвуют в глюконогенезе-биосинтезе глюкозы из образующегося в мышцах лактата. Гликолиз рассматривают в качестве осн. пути, связывающего углеводный обмен с обменом карбоновых к-т и липидов. К модификации гликолиза относят путь спиртового брожения. В отсутствие свободного О 2 дрожжи по этому пути количественно расщепляют глюкозу на этанол и СО2, осуществляя т. наз. анаэробное дыхание.
НАЗВАНИЯ И ФОРМУЛЫ НЕКОТОРЫХ КИСЛОТ, ВСТРЕЧАЮЩИХСЯ В ТЕКСТЕ И НА СХЕМАХ 1-3
Назв. иоиизир. Назв. к-ты Формула формы к-ты
Адипат Адипиновая НООС(СН2)4СООН
Аконитах Аконитовая НООССН2С(СООН)=СНСООН
Акрилат Акриловая СН2=СНСООН
Аллантоат Аллантоиновая H2NС(O)NHCH(COOH)NHC(O)NH2
Антранилат Антраниловая o-H2NC6H4COOH
Аскорбат Аскорбиновая 
Аспартат Аспарагиновая HOOCCH2CH(NH2)COOH
Ацетат Уксусная СН3СООН
Ацетоацетат Ацетоуксусная СН3С(О)СН2СООН
Ацетолактат Ацетомолочная СН3С(О)С(СНз)(ОН)СООН
Барбитурат Барбитуровая 
Бутират Масляная СН3СН2СН2СООН
Валерат Валериановая СН3(СН2)3СООН
Гегсаноат Гексановая СН3(СН2)4СООН
Гентизат Гентизиновая 2,5-(НО)2С6Н3СООН
Гликолат Гликолевая НОСН2СООН
Глиоксилат Глиоксиловая СН(О)СООН (глиоксалевая)
Глицерат Глицериновая НОСН2СН(ОН)СООН
Глутаконат Глутаконовая НООССН2СН=СНСООН
Глутамат Глутаминовая HOOCCH2CH2CH(NH2)COOH
Глутарат Глутаровая НООС(СН2)3СООН
Глюконат Глюконовая НОСН2(СНОН)4СООН
Изоцитрат Изолимонная НООССН(ОН)СН(СООН)СН2СООН
Кротонат Кретоновая СН3СН=СНСООН
Лактат Молочная СН3СН(ОН)СООН
Малат Яблочная НООССН2СН(ОН)СООН
Малеинат Малеиновая цис-НООССН==СНСООН
Малеоилацето- Малеоилацетоацетат уксусная НООССН=СНС(О)СН2С(О)СН2СООН
Малонат Малоновая НООССН2СООН
Мевалонат Мевалоновая HOCH2CH2С(CH3)(OH)CH2COOH
Мевальдат Мевальдиновая ОСНСН2С(СН3)(ОН)СН2СООН
Мезаконат Мезаконовая транс-СН3С(СООН)=СНСООН
Муконат Муконовая НООССН=СНСН=СНСООН
Оксалат Щавелевая НООССООН
Оксалоацетат Щавелевоуксусная НООСС(О)СН2СООН
Оротат Оротовая 
Паракумарат пара-Кумаровая n-НОС6Н4СН=СНСООН Пипеколат Пиперидин-2-карбоновая 
Пируват Пировиноградная Префенат Префеновая СН3С(О)СООН

Пропионат Пропиоповая СН3СН2СООН
Сукцинат Янтарная НООССН2СН2СООН
Тиглат Тиглиновая CH3CH=С(CH3)COOH
Урат Мочевая 
Уроканат Урокановая 
Формиат Муравьиная НСООН Фосфоенолпиру- Фосфоенолпироват виноградная СН2=С(РО4Н2)СООН
Фумарат Фумаровая транс-НООССН=СНСООН
Фумароилацето- Фумароилацетоацетат уксусная НООССН=СНС(О)СН,С(О)СН2СООН
Хиннат Хинная 
Хоризмат Хоризмовая 
Циннамат Коричная С6Н5СН=СНСООН
Цистеат Цистеин HSCH2CH(NH2)COOH
Циграконат Цитраконовая циc-CH3C(COOH)=CHCOOH
Цитрамалат 2-Метил-2-гидроксиянтарная НООСС(ОН)(СН3)СН2СООН
Цитрат Лимонная (НООССН2)2С(ОН)СООН
Шикимат Шикимовая 
Важную роль в катаболизме углеводов играет пентозо-фосфатный цикл. Ключевые р-ции этого пути - окисление глюкозо-6-фосфата до 6-фосфоглюконата и декарбоксили-рование последнего с образованием СО2, воды и рибулозо-5-фосфата. Благодаря цикличности этого процесса обеспечивается стационарность окисления глюкозы в тканях. Так же как и в случае гликолиза, равновесные р-ции этого пути составляют амфиболич. участок, к-рый наряду с р-цией карбоксилирования рибулозо-1,5-дифосфата обеспечивает при фотосинтезе у зеленых растений обратный процесс-биосинтез глюкозы из СО2 и воды. При этом глюкоза в результате ферментативного превращ. в олиго- и полисаха-риды выводится из сферы обмена веществ в виде крахмала, целлюлозы и др.
С р-циями пентозофосфатного цикла связан метаболизм входящих в состав нуклеиновых к-т пентоз, а также биосинтез углеводных предшественников биополимера лигнина и ароматич. аминокислот.
Осн. углеводным субстратом в обмене веществ человека и высших животных служит глюкоза. Она сохраняется в виде резервного полисахарида гликогена в печени и частично в мышцах. Восстановление запасов гликогена происходит благодаря его синтезу из глюкозы, образуемой при глюконеогенезе или поступающей в кровоток через стенки кишечника. В последний глюкоза попадает в результате гидролиза крахмала пищ. продуктов амилазой слюны и ферментами желудочно-кишечного тракта.
Наряду с крахмалом высшие животные усваивают гликоген, нек-рые олигосахариды и дисахариды, напр. сахарозу, мальтозу, лактозу и др. Специализир. микроорганизмы могут расщеплять ксилан, целлюлозу, хитин, лигнин и др. устойчивые полисахариды. Способность жвачных животных усваивать целлюлозу и ксилан обусловлена жизнедеятельностью микрофлоры, обитающей в сложном желудке животных.
На схеме 1 показаны осн. пути обмена углеводов. В ее верх. части представлены моносахариды и их производные с трео-конфигурацией в положении 3-4. В ниж. части размещены ряды соед. тех же классов, но с эритро-конфигурацией в этом же положении. Высшие моносахариды образуются из низших в обратимых р-циях конденсации с соед., содержащими в молекуле два или три атома С. В р-циях, катализируемых транскетолазами и соединяющих периоды п и п + 2 схемы (начиная с п = 2), из D-альдоз ниж. ряда образуются 3,4-D-трео-кетозы верх. ряда, имеющие углеродный скелет на два атома С больше, чем исходные альдозы. В р-циях конденсации D-альдоз с соед., содержащими три атома С, обеспечивающих связь между периодами п и п + 3, углеродный скелет увеличивается на 3 атома С. Пентозы образуются в результате декарбоксилирования уридиндифосфатных (УДФ) производных уроновых к-т. Переход от 3,4-D-mpeo-моносахаридов к 3,4-D-эритро-моносахаридам (периоды 5 и 6) осуществляется эпимеризацией соответствующих кетоз и УДФ-альдоз. Р-ции окисления алъдоз в альдоновые к-ты, дегидратации алъдоновых к-т до 2-кето-3-дезоксиальдоно-вых к-т и расщепления последних на соответствующие алъдозы и пируват составляют пути распада углеводов у микроорганизмов.

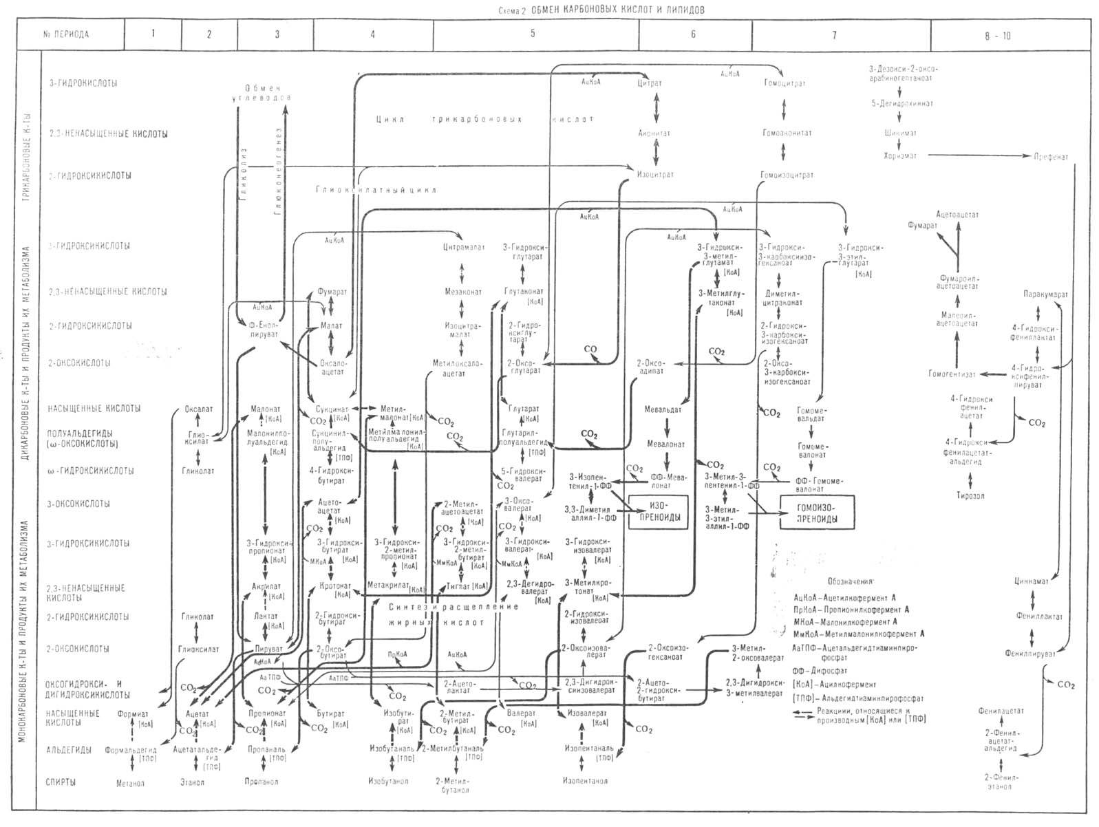
О б м е н к а р б о н о в ы х к и с л о т и л и п и д о в. Обмен этих в-в тесно связан с обменом углеводов. Образующийся на предпоследней стадии гликолиза пируват в результате окислит. декарбоксилирования превращ. в ацетилкофермент А (АцКоА; см. Пантотеповая кислота). Т. к. АцКоА является непосредств. предшественником в биосинтезе жирных к-т и изопреноидов, гликолиз и окислит. декарбоксилирование служат путем, в к-ром осуществляется превращ. углеводов в липиды. Наиб. распространенными липидами в организме животных являются триацилглицерины и нек-рые изопре-ноиды. К последним относятся стероиды (гл. обр. холестерин и его производные) и каротиноиды.
Обратный процесс-биосинтез углеводов из жиров-для животных не характерен. У растений и микроорганизмов он протекает в глиоксилатном цикле. В последнем из образующегося в результате расщепления жирных к-т АцКоА синтезируется сукцинат, к-рый в результате р-ций окисления и декарбоксилирования превращ. в фосфоенолпируват. Далее из фосфоенолпирувата на амфиболич. участке пути гликолиза образуются углеводы.
Катаболич. путь утилизации АцКоА состоит в окислении содержащегося в нем остатка уксусной к-ты в цикле три-карбоновых к-т до СО2 и воды. При дефиците углеводов АцКоА для осуществления их биосинтеза образуется в результате расщепления жирных к-т или нек-рых аминокислот. Т. обр., у мн. организмов цикл трикарбоновых к-т служит общим завершающим механизмом окисления углеводов, жиров и белков. В то же время у растений в условиях фотосинтеза т. наз. обращенный цикл трикарбоновых к-т может, подобно пентозофосфатному циклу, выполнять анаболическую функцию - превращ. СО2 в органические соединения.
Осн. метаболич. пути в обмене карбоновых к-т и липидов приведены на схеме 2. На ней показаны превращения три-, ди- и монокарбоновых к-т, а также их производных. Общим путем биосинтеза ди- и трикарбоновых к-т служат р-ции конденсации соответствующих моно- и дикарбоновых к-т с АцКоА или глиоксилатом. Три-, ди- и монокарбоновые к-ты переходят соотв. в ди-, монокарбоновые к-ты и альдегиды в р-циях декарбоксилирования. Связь между соед. внутри периодов осуществляется в р-циях окисления и восстановления карбонильных групп (соотв. до карбоксильных и гидро-ксильных), в обратимых р-циях дегидратации гидроксикис-лот в 2,3-ненасыщ. к-ты и гидрирования 2,3-ненасыщ. к-т в насыщенные. В перечисл. р-циях образуются и расщепляются алифатич. 2-оксокислоты - предшественники соответствующих аминокислот. Углеродные скелеты оксокислот-предшественников валина и изолейцина (в периодах 5 и 6) - образуются в р-циях конденсации соотв. пирувата и 2-оксо-бутирата с активным ацетальдегидом (продукт тиаминза-висимого декарбоксилирования пирувата-a-гидроксиэтил-тиаминопирофосфат; см. Тиамин). Р-ции оксопредшествен-ников ароматич. аминокислот представлены в периодах 7-10. Превращения дикарбоновых и трикарбоновых к-т в верх. части периодов 4-6 составляют цикл трикарбоновых к-т и глиоксилатный цикл. В ниж. части схемы представлены начальные этапы путей биосинтеза и расщепления линейных и разветвленных жирных к-т. Первые наращивают углеводородную цепь благодаря конденсации с ацетильным фрагментом малонил-кофермента А, переходя из периода п в п + 2, вторые - в аналогичной р-ции с пропионильным фрагментом метилмалонил-коферментом А, переходя из периода п в п + 3. В периодах 6 и 7 приведены пути биосинтеза мевалоната и гомомевалоната - предшественников соотв. изопреноидов (терпенов, стероидов, каротино-идов и др.) и реже встречающихся гомоизопреноидов (напр., ювенильный гормон насекомых).
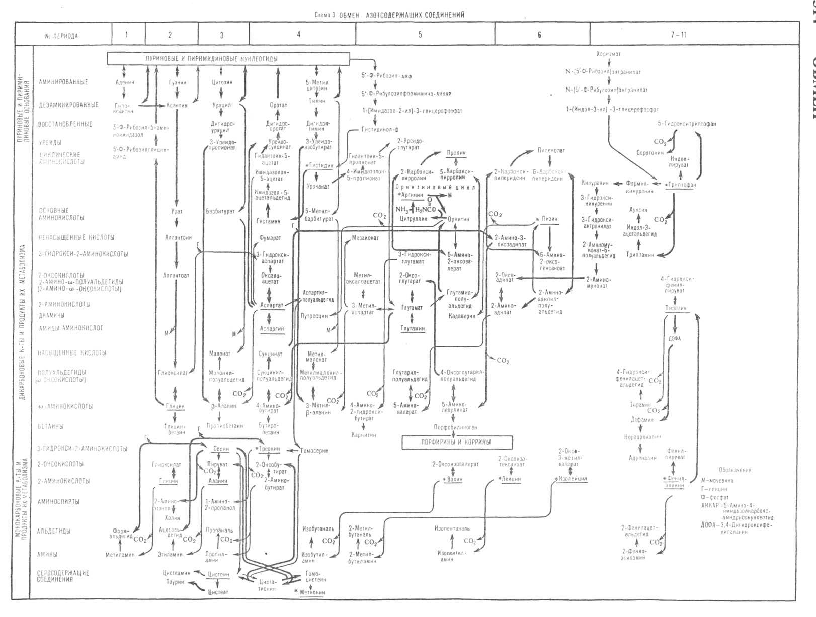
О б м е н а з о т с о д е р ж а щ и х с о е д и н е н и й. Первичный источник азота в обмене веществ-атмосфера. Непосредственно использовать своб. азот могут мн. виды бактерий. Однако большая часть микроорганизмов и все животные и растения усваивают лишь связанный азот в виде солей аммония, нитритов, нитратов или продуктов расщепления белков. Основу внутр. азотистого обмена составляют биосинтез и расщепление белков, нуклеиновых к-т и порфиринов. Аминокислоты в организме образуются в р-циях восстановит. аминирования или переаминирования a-оксокислот. Белки включают лишь 20 из всех встречающихся в живой природе аминокислот, наз. протеиногенными. Из них в организме высших животных синтезируется примерно половина. Др. половина относится к незаменимым и в организм поступает только с пищей. Синтез полилептидной цепи белка из аминокислот (трансляция)осуществляется рибосомой. Последовательность аминокислот в белке определяется последовательностью триплетов генетич. кода в матричной РНК.
Катаболизм белков у всех организмов начинается с их расщепления по пептидным связям протеолитич. ферментами. В желудочно-кишечном тракте животных белки гидро-лизуются трипсином, химотрипсином, пепсином и др. ферментами до своб. аминокислот, к-рые всасываются стенками кишечника и попадают в кровоток. Часть аминокислот подвергается дезаминированию до оксокислот, претерпевающих дальнейшее расщепление, др. часть используется печенью или тканями организма для биосинтеза белков. У млекопитающих отщепляющийся от аминокислот аммиак превращ. в орнитиновом цикле в мочевину. Этот процесс осуществляется в печени. Образующаяся мочевина вместе с др. р-римыми продуктами обмена веществ выводится из кровотока почками.
У человека половина всех тканевых белков расщепляется и строится заново в среднем в течение 80 сут, белки печени и сыворотки крови наполовину обновляются каждые 10 сут, белки мышц-каждые 180 сут, отдельные ферменты печени-каждые 2-4 ч.
Нуклеиновые к-ты-продукты углеводного и азотистого обмена. ДНК образуется в клетке в результате репликации или обратной транскрипции из дезоксирибонуклеозидтри-фосфатов, РНК-в результате транскрипции из рибонуклео-зидтрифосфатов. Нуклеиновые к-ты выполняют ф-ции хранителей и переносчиков наследств. информации, закодированной в последовательности четырех разл. оснований в цепочках нуклеиновых к-т. Эта информация реализуется в структуре белка. Через ферментативные и структурные ф-ции белка она определяет наследуемые особенности обмена веществ организмов. Катаболизм нуклеиновых к-т состоит в их гидролизе нуклеазами до нуклеотидов, к-рые затем расщепляются на составляющие их фосфат, пентозы, пури-новые и пиримидиновые основания. При этом пуриновые основания окисляются до мочевой к-ты, к-рая у млекопитающих расщепляется до глиоксилата и мочевины. Пиримидиновые основания в организме животных расщепляются до b-аланина и 3-аминоизобутирата.
Исходными субстратами в биосинтезе порфириновых соед. служат сукцинат и глицин. Порфириновые соед. выполняют в обмене веществ важные ф-ции, принимая участие в окислит.-восстановит. процессах. В частности, в составе тема в гемоглобине порфириновое кольцо участвует в переносе О2 в крови. Порфириновое кольцо входит в состав цитохромов и хлорофиллов. Катаболизм порфиринов в животном организме состоит в раскрытии и частичной деградации пор-фиринового кольца. Продукты катаболизма в виде окраш. соед. (биливердина, билирубина и др.) наряду с продуктами частичного окисления стероидов (холевыми к-тами) выводятся через желчные протоки в кишечник.
На схеме 3 показаны превращения пуриновых и пири-мидиновых оснований, уреидов карбоновых к-т, а также дикарбоновых и монокарбоновых аминокислот и их производных. Протеиногенные аминокислоты на схеме подчеркнуты (незаменимые для человека аминокислоты отмечены звездочкой). Осн. путь биосинтеза мочевины у млекопитающих (орнитиновый цикл) представлен в периоде 5. Р-ции образования и расщепления пуриновых и пиримидиновых оснований размещены в периодах 2-4 в верх. части схемы (для этих групп соед. периоды не всегда соответствуют кол-ву атомов С в скелете молекулы). В средней части схемы показан путь биосинтеза предшественников порфириновых и корриновых соед.-d-аминолевулиновой к-ты и порфо-билиногена из глицина и сукцината.
Взаимоотношение между обменом углеводов, липидов и карбоновых к-т, а также азотсодержащих соед. показано на схеме 4.

Схема 4. Обобщенная схема обмена веществ.
М и н е р. о б м е н. Под минер. обменом понимают процессы усвоения, превращ. и выведения организмом неорг. в-в. Поскольку такие неорг. в-ва, как вода, СО2, NH3, фосфаты, сульфаты, иод и др., включаются при обмене веществ в орг. соед., между орг. и минер. обменами четкая граница отсутствует. Наиб. уд. вес в минер. обмене занимает водно-солевой обмен, в к-ром принимают участие катионы (Na+ , K+, Са2+ , Mg2+) и анионы (Сl-, НРО42-, НСО3-, SO42-). В результате активного трансмембранного переноса ионы Na+ непрерывно удаляются из клеток в межклеточную среду, а замещающие их ионы К+ концентрируются внутри клеток. Ионы Са2+ у животных участвуют в проведении нервного импульса, поэтому постоянство их концентрации в организме имеет существ. значение для нормального функционирования нервной системы. У позвоночных животных Са2+ и фосфат НРО42- в виде кальциевых солей фосфорной к-ты служат главными компонентами костной ткани. Из карбонатов Са и Mg беспозвоночные строят раковины. У растений Mg2+ входит в состав хлорофилла. Сульфатная группа-фрагмент желчных к-т и хондроитинсульфата хрящей. В организме сульфат образуется в результате окисления сульфгидриль-ных групп цистеина и гомоцистеина. Водно-солевой обмен обеспечивает постоянство ионного состава, осмотич. давления, рН и объема жидкостей организма. Потребность взрослого человека в Na+, K+, Са2+, Mg2 + , Сl- и НРО42-составляет соотв. 215, 75, 60, 35, 25 и 105 мг/сут. Выведение из организма р-римых минер. продуктов обмена веществ, так же как и органических, осуществляется у человека и животных почками.
Ф-ция мн. металлов (напр., железа, меди, цинка, кобальта, молибдена) в обмене веществ состоит в их участии в биохим. р-циях в качестве коферментов. Иод участвует в обмене веществ в составе гормона тироксина. Большая часть из перечисл. элементов присутствует в организме в концентрации меньшей, чем 10-3%, и относится к микроэлементам. Особо в обмене веществ рассматривают минер. питание растений. Соли аммония, калия, нитраты, фосфаты и микроэлементы широко используют в качестве удобрений, улучшающих рост и увеличивающих продуктивность растений.
Энергетический обмен
Движущей силой обмена веществ служит разность термодинамич. потенциалов участвующих в р-циях соединений. По источникам используемой при обмене веществ энергии организмы делят на ф о т о т р о ф ы и х е м о т р о ф ы. У первых роль богатых энергией субстратов выполняют эндогенные продукты начального этапа фотосинтеза, у вторых-разл. соед. экзогенной природы. Если в качестве субстратов окисления хемотрофы используют орг. соед., то их относят к х е м о о р г а н о т р о-ф а м, если неорганические (напр., Н2, NH3, CO, Н2S)-к л и т о т р о ф а м.
В рамках общего обмена веществ изучение энергетич. обмена у фототрофов состоит в определении энергетич. параметров фотосинтеза, у хемотрофов - в исследовании баланса между энергией, выделяемой при расщеплении субстратов обмена веществ, и энергией, расходуемой на биосинтез конечных продуктов обмена веществ, на совершение мех. работы, а также рассеиваемой в виде тепла. В общем энергетич. обмене животных выделяют о с н. о б м е н-миним. кол-во энергии, необходимое для поддержания жизни организма в состоянии покоя. У взрослого человека он составляет 1600-1700 ккал/сут (6700-7100 кДж/сут). Кол-во тепла, выделяемое теплокровными животными при осн. обмене, пропорционально пов-сти их тела (правило Рубнера). Более точно теплопродукция (в ккал/сут) организма животных выражается ф-лой W = = 70 М0,75 (М-масса тела в кг). Данные об общем энергетич. обмене используют для вычисления калорийности продуктов питания и составления сбалансированных по энергозатратам организма рационов питания.
Мол. механизмы генерирования и утилизации энергии на промежут. этапах обмена веществ изучает биоэнергетика, к-рая рассматривает сопряжение биол. окисления с фосфорилирова-нием. Это обусловлено тем, что своб. энергия гидролиза осн. продукта фосфорилирования-АТФ и в меньшей степени др. фосфатных производных, напр. гуанозинтрифосфата, креатинфосфата,-обеспечивает в сопряженных р-циях синтез сложных соед., мышечное сокращение, транспорт соед. через биол. мембраны против градиента концентрации (активный транспорт), создание на мембране электрич. потенциала, разряд к-рого, в частности, обеспечивает проведение нервного импульса и др. биоэлектрич. явления. Энергия гидролиза АТФ может также трансформироваться в световую энергию или служить в организме источником тепла.
Различают субстратное фосфорилирование, состоящее в фосфорилировании молекул субстрата при их окислении никотинамидными коферментами (см. Ниацин) и окислит. фосфорилирование, наблюдаемое на стадии образования АТФ из аденозиндифосфата (АДФ) при переносе электронов (атомов водорода) по цепи коферментов в процессе дыхания и в фотосинтезе. Пример субстратного фосфорилирова-ния - катализируемая в гликолизе глицсральдегидфосфат-дегидрогеназой р-ция образования D-1,3-дифосфоглицери-новой к-ты (НО)2Р(О)ОСН2СН(ОН)С(О)ОР(О)(ОН)2 из не-орг. фосфата и D-глицеральдегид-3-фосфата. Фосфатная группа в положении 1 этого соед. с помощью фермента фосфоглицераткиназы может переходить к АДФ, образуя АТФ. Субстратное фосфорилирование более характерно для организмов, живущих в анаэробных условиях. Объектом для переноса электронов (атомов водорода) у них обычно служат карбонильные группы промежуточных продуктов окисления субстрата. Так, НАДН (восстановл. форма нико-тинамидадениндинуклеотида) восстанавливает продукт де-карбоксилирования пирувата (ацетальдегид) до этанола (при брожении), а пируват-до лактата (при гликолизе). Пример окислит. фосфорилирования - синтез АТФ в аэробных условиях, а также у сульфатных бактерий в анаэробных условиях. Во всех этих случаях образование АТФ сопряжено с переносом электронов (атомов водорода) по цепи окислит.-восстановит. коферментов, включающей никотинамид-ные и флавиновые коферменты (см. Рибофлавин), убихиноны (у животных), пластохиноны (у растений), негеминовое железо и медь. В митохондриях первонач. донором электронов (атомов водорода) служат орг. соед., а конечным акцептором - атмосферный О2, в хлоропластах донором и акцептором электронов (атомов водорода) служат продукты фотореакции. У сульфатных бактерий донором являются орг. соед., а акцептором-сульфат, восстанавливаемый до сульфида.
Особенность биол. окисления в аэробных условиях состоит в том, что орг. субстрат обычно полностью окисляется до СО2 и воды в циклич. последовательностях р-ций. Пример такого окисления - превращения в цикле трикарбо-новых к-т ацетата, образующегося в виде АцКоА при окислит. расщеплении жирных к-т, углеводов и нек-рых аминокислот. Др. пример - полное окисление глюкозы в пентозофосфатном цикле. Циклич. пути благодаря полному окислению субстратов позволяют извлекать из орг. соед. максимум заключенной в них своб. энергии.
Регуляция обмена веществ
На обмен веществ постоянно оказывают воздействие разл. факторы внеш. и внутр. среды. Большая часть из них эффективно используется организмами для своего роста и развития. Это происходит благодаря функционированию механизмов регуляции обмена веществ. Наиб. простым из них, способствующим сохранению внутр. среды организма (поддерживанию гомеостаза), является механизм восстановления в хим. системе равновесия в соответствии с законом действующих масс. Благодаря этому значения рН в буферных жидкостях организма устойчивы к случайным воздействиям. Предотвращение накопления в организме невыводимых продуктов обмена веществ также осуществляется благодаря восстановлению равновесия в замыкающих участках циклич. путей обмена веществ.
Более сложные механизмы регуляции обмена веществ обусловлены прямыми и обратными управляющими связями. Суть их состоит в воздействии метаболитов на интенсивность био-хим. процессов, в к-рых они сами образуются или испытывают превращения. В обмене веществ регуляция активности ферментов часто осуществляется посредством аллостерич. взаимод. ферментов с субстратами или промежут. продуктами (см. Ферменты). Классич. пример подобной регуляции с отрицат. обратной связью-подавление изолейцином собств. биосинтеза в результате его аллостерич. взаимод. с ферментом треониндегидратаза, катализирующим начальную р-цию пути биосинтеза изолейцина. Пример положит. прямой связи - стимуляция синтеза фосфоенолпирувата в гликолизе предшествующими метаболитами: фруктозо-1,6-дифосфатом, глюкозо-6-фосфатом и глицеральдегид-3-фос-фатом. Управляющие связи такого рода позволяют стабилизировать концентрации метаболитов в неравновесной системе.
Сходным образом осуществляется регуляция обмена веществ на уровне биосинтеза ферментов. При этом субстрат или продукт р-ции регулирует активность белкового репрессора, подавляющего транскрипцию (синтез матричной РНК на ДНК-матрице) соответствующего оперона (участок ДНК, кодирующий одну молекулу матричной РНК под контролем белка-рспрессора). Примером регуляции при помощи положит. прямой связи может служить в данном случае управление расщеплением лактозы. Появление в среде лактозы инактивирует у бактерии Escherichia coli соответствующий репрессор и тем самым разрешает транскрипцию оперона, кодирующего ферменты, катализирующие расщепление лактозы. Пример регуляции при помощи отрицат. обратной связи - управление биосинтезом гистидина. Избыток гисти-дина активирует репрессор, ингибирующий транскрипцию оперона, кодирующего ферменты биосинтеза гистидина. Если репрессор и белки, синтез к-рых он подавляет, кодируются одним опероном, то отрицат. обратная связь осуществляется без участия внеш. модуляторов активности репрессора. Аналогичным образом осуществляется регуляция биосинтеза белка на уровне трансляции (синтез белка на РНК-матрице). Такой механизм регуляции позволяет синтезировать белок в строгом соответствии с потребностью в нем на данном этапе существования организма.
Многоклеточные организмы наряду с рассмотренными внутриклеточными механизмами имеют надклеточные-гормональные механизмы регуляции обмена веществ. Гормональная регуляция координирует обмен веществ в разл. тканях и органах и интегрирует его в рамках организма в целостную систему. Гормональная регуляция обмена веществ у растений осуществляется группой фитогормонов, напр. ауксинами и гиббереллинами. Гормональную регуляцию обмена веществ у животных осуществляет эндокринная система, источниками гормонов в к-рой являются центр. и переферич. железы внутр. секреции. Характер управляющих связей в этой системе иллюстрирует механизм поддержания концентрации глюкозы в крови на постоянном уровне. Так, повышение концентрации глюкозы в крови увеличивает продукцию инсулина, к-рый стимулирует клетки на усиленное потребление глюкозы. Возникающий при этом дефицит глюкозы приводит к увеличению продукции др. пептидного гормона-глюкагона, к-рый стимулирует восстановление концентрации глюкозы благодаря расщеплению гликогена в клетках.
Как правило, механизмы гормональной регуляции многоступенчаты. Воздействие гормонов на обмен веществ осуществляется через клеточную мембрану, во мн. случаях посредством активирования аденилатциклазной системы (см. Аденилат-циклаза). Обратные связи в эндокринной системе часто замыкаются через нервную систему. При этом нервная система, получая сигналы из внеш. среды или от внутр. органов, управляет железами внутр. секреции. Напр., гипоталамус по сигналам от центр. нервной системы, передаваемым гормонами-медиаторами (напр., норадренали-ном, ацетилхолином), секретирует пептидные нейрогормо-ны (релизинг-факторы), разрешающие секрецию гормонов гипофиза. Последние стимулируют секрецию гормонов периферич. эндокринными железами. Эти гормоны влияют на обмен веществ в соответствующих органах и тканях т. обр., чтобы компенсировать изменения во внутр. среде или подготовиться к возможным ее изменениям, прогнозируемым центр. нервной системой (напр., при стрессовых ситуациях). Гипо-таламо-гипофизарная система, в частности, играет центр. роль в регуляции водно-солевого обмена животных (см. Вазопрессин, Окситоцин).
Регуляция при помощи управляющих связей допускает возникновение в обмене веществ состояний с автоколебат. режимами (см. Колебательные реакции), обусловливающими периодич. изменение концентраций нек-рых метаболитов. Такие автоколебат. режимы лежат в основе разл. периодич. процессов у живых организмов, напр. сердечных сокращений, суточных ритмов активности и др.
Нарушения обмена веществ
Различают нарушения обмена веществ, вызываемые прямым влиянием на него неблагоприятных факторов (недостаток или несбалансированность орг. и минер. субстратов обмена веществ, избыточности или недостатка внеш. физ. воздействий-т-ры, света, звука и др.), и нарушения, вызываемые изменениями в наследств. аппарате организма. В соответствии с этим заболевания обмена веществ у людей подразделяют на болезни недостаточности и врожденные болезни. Напр., к болезням недостаточности относятся алиментарная дистрофия при голодании или недостатке в пище незаменимых аминокислот, авитаминозы (цинга-при недостатке аскорбиновой к-ты, рахит -при недостатке витамина D). К болезням недостаточности более чувствительны организмы в стадии роста и развития. Примеры врожденных болсзней-алкаптонурия, связанная с недостаточной активностью ферментов, расщепляющих гомогентезиновую к-ту, и серповидноклеточная анемия (см. Гемоглобин).
Нарушения обмена веществ у микроорганизмов, вызванные изменениями в составе субстратов или полученные в результате мутагенеза, широко используют в практич. целях. Так, добавляя в питат. среду дрожжей сульфит натрия, удается переключить алкогольное брожение на глицериновое и создать на этой основе биотехнологию получения глицерина. В микробиол. пром-сти широко используют полученные селекцией штаммы микроорганизмов-суперпродуценты отдельных аминокислот, антибиотиков и др. Методы генной инженерии позволяют избирательно изменять наследственный аппарат клеток и благодаря этому целенаправленно воздействовать на структуру и динамику обмена веществ у организмов.
Лит.: Дэгли С., Никольсон Д., Метаболические пути, пер. с англ., М., 1973; Ньюсхолм Э., Старт К., Регуляция метаболизма, М., 1977; Лукнер М., Вторичный метаболизм у микроорганизмов, растений и животных, пер. с англ., М., 1979; Мак-Мюррей У., Обмен веществ у человека, пер. с англ., М., 1980; Малыгин А. Г., Симметрия сети реакций метаболизма, М., 1984.
А. Г. Малыгин.